karkasiki.pro
Планировки маленьких домов
Проекты
мини-дом
,
планировка
karkasiki
28.Ноябрь.2025 06:41:21
1
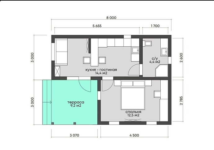
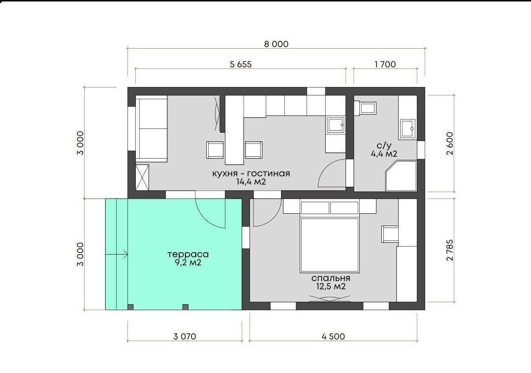
Вариант маленького домика для сезонного пребывания
LAHZ9w8dp6wKqMZQi71OWaPQwT7RlW4Sn2jU5wEmYEPlkyXhOGIMCdvzsdex0-RoFdS9o3r0mjloR4Hi86aIc7v3
1079×759 71.6 KB
qNezqsl9fMhm2jmktc4U5_Qnsh9MdFl33GvXJP7EFfMBj2h_rI4XdsTTBFBlTAPJp4JE9N6TPrqPoPeXKSifLrhp
1079×606 175 KB