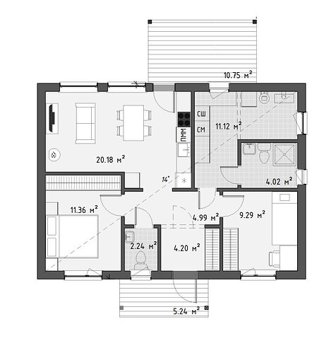
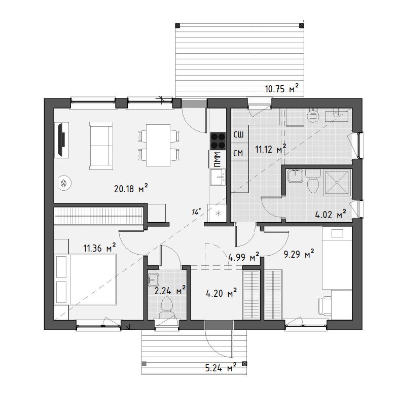
Каркасный дом площадью 75 м
Что понравилось:
- Большое хозяйственное помещение
- Все мокрые зоны рядом – удобнее с коммуникациями
Что поменял бы:
- Увеличил бы вторую спальню – как вариант поменять ее местами с техническим помещением
- Добавил кладовку – можно выделить часть “хозяйственного помещения”
- Убрал бы выход на улицу из хозяйственного помещения
Вариант внешнего вида дома:

